


 |
agape boxes


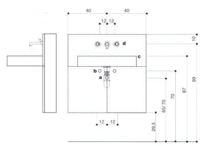
Agape Boxes bathroom sink in wood, 80cm wide X 12cm deep X 80cm high, which forms the support for a cantilevered beautiful clear glass sink, 60cm wide X 36cm deep, with the plumbing hidden within - a marble sink is available as an option. A wall mounted bathroom tap, optional, makes up the overall minimalist effect. The whole arrangement is hung 30cm from the floor surface. Dimensions in images on left in centimetres.
email: info2@giant.co.uk for pricing and delivery information
BATHROOM
KITCHEN
| |HOME||sitemap|terms + conditions|bathroom design ideas|message service - tel: +44 7818 096 595 | email: info2@giant.co.uk
|
COMPLEMENTARY PRODUCTS

nostromo |

manovella |
|